HOSPITAL VIAMED SEVILLA
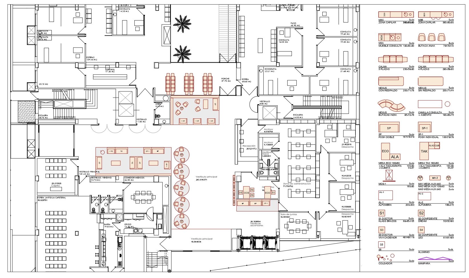
La intervención en el proyecto consta del diseño de las zonas comunes del complejo hospitalario privado VIAMED, en la ampliación proyectada y llevada a cabo por el estudio Blasco y Esparza.
Se necesita proyectar un espacio cómodo y agradable para los usuarios de dicho hospital, de la mano con materiales nobles y de calidad que aporten a los visitantes un plus de bienestar en sus visitas médicas.
COLABORACIÓN:
Con Blasco y Esparza
CLIENTE:
VIAMED Santa Ángela
SUPERFICIE:
487 m2
ESTADO:
Finalizado
CRONOLOGÍA:
2020-2021
LOCALIZACIÓN:
Sevilla


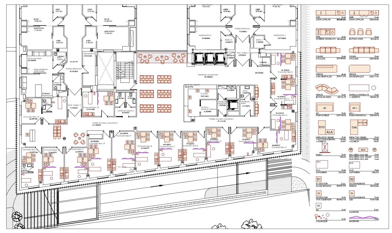
Comenzamos diseñando el LOBBY de la planta baja, posteriormente fuimos diseñando las sucesivas plantas 1, 2 y 3.
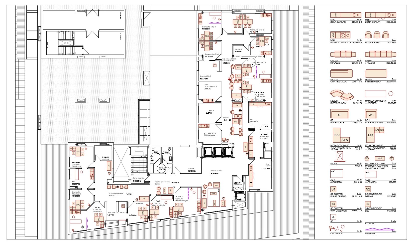
En los avances del proyecto también se nos encarga el diseño del MOBILIARIO de las consultas de implantología y dermatología, que fuimos adaptando consulta a consulta dependiendo de las necesidades específicas de cada estancia.
Se apuesta por el uso de la madera, que aporta calidez a este tipo de espacios que normalmente se caracterizan por la frialdad e impersonalidad. Se busca reinventar la forma de esperar en los hospitales, creando una experiencia acogedora y agradable. En la planta superior se realizó un diseño «premium» por tratarse de una zona más exclusiva.











Se puso como objetivo la comodidad y durabilidad del mobiliario diseñado. Las cajas de madera se pintan con una imprimación de gran durabilidad y se combinan con las «palas» distribuyéndose indistintamente por todo el espacio. Se colaboró con casas de muebles como CADEINOR y DILEOFFICE. Proveedores y fabricantes del mobiliario a medida: MATEO MUÑOZ – OLIVETTI y MOBEKIP.














